G71 Drsni panoramski okenski sistem do velikosti 6,2 x 2,5 m



Največja dimenzija je 6,2 m širina x 2,5 m višina.

G71 je naš novi drsni panoramski stekleni sistem brez navpičnih profilov, zasnovan z inovativnim sistemom, v celoti narejen v Italiji, nadzorovan, izrisan in sestavljen pri nas.

Zahvaljujoč sistemu vlečenja, ki je na vratih, se ob odprtju prvga stekla tudi preostala stekla samodejno odprejo in zaprejo.

Ta sistem se popolnoma prilagaja različnim okoljskim razmeram, kot so zimski vrtovi, balkoni, terase, delilniki prostora, komercialne galerije itd. Ali pa ga je mogoče prilagoditi obstoječim prostorom z izboljšanjem temperature okolja, udobja in trenutkov čiste sprostitve.

Enostavnost in hitrost vgradnje brez zidarskih del je še ena ključna značilnost našega novega drsnega sistema.

G71 predstavlja veljavno alternativo klasičnim rešitvam za teraso, hkrati pa ohranja visoke zahteve glede kakovosti, udobja in varnosti.



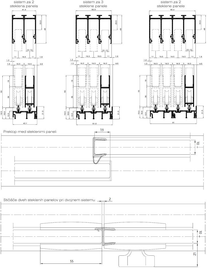
Tehnične značilnosti
Spodnja proga 3 poti (83 mm), 4 poti (105 mm), 5 poti (126 mm)
Zgornja steza 3 poti (69 mm), 4 poti (90 mm), 5 poti (113 mm)
Vrata 77 mm.
Pokončen profil s tesnili in 32 mm zaustavitvijo.
Inovativni dvokolesni samo-uravnoteženi voziček z zmogljivostjo do 100 kg.
Možnost vstavitve 10 mm/12 mm monolitnega kaljenega stekla.

Lastnosti in prednosti
- Odpiranje in zapiranje oken z dvosmernim drsenjem (od leve proti desni ali od desne proti levi).
- Spodnji vodilni drsnik 21 mm v skladu s predpisi, ki se nanašajo na arhitekturno pregrado.
- Tesnila proti prahu, zraku in vodi v prosojnem PVC-ju med stekli.
- Možnost osrednje odprtine s samozapiranjem na tleh ali sijajno kromirano ključavnico na steklu.
- Stransko odpiranje z drsnim obročem ali ključavnico skupaj z zunanjim ključem in notranjim gumbom.
- Teleskopski sistem za drsanjem stekla.
- 3, 4 ali 5-smerna steza in dvojna zasteklitev z osrednjo odprtino.
- Sistem z odtokom na spodnjem vodilu.
- Skladen s splošnim standardom UNI EN 14351-1: 2016: odpornost proti vetrnim obremenitvam UNI EN 12211: 2016, UNI EN 12210: 2016 in odpornost na udar UNI EN 13049: 2004.

Standardne barve konstrukcije                                                                              +5%



Načrt


G71
4.193,00 € (z davkom) 4.193,00 € (brez davka)
(Brez davka)



  • 120 cm sistem z 2 steklenima paneloma
  • 140 cm sistem z 2 steklenima paneloma
  • 160 cm sistem z 2 steklenima paneloma
  • 180 cm sistem z 2 steklenima paneloma
  • 200 cm sistem z 2 steklenima paneloma
  • 200 cm sistem s 3 steklenimi paneli
  • 220 cm sistem z 2 steklenima paneloma
  • 220 cm sistem s 3 steklenimi paneli
  • 240 cm sistem z 2 steklenima paneloma
  • 240 cm sistem s 3 steklenimi paneli
  • 260 cm sistem z 2 steklenima paneloma
  • 260 cm sistem s 3 steklenimi paneli
  • 280 cm sistem z 2 steklenima paneloma
  • 280 cm sistem s 3 steklenimi paneli
  • 280 cm sistem s 4 steklenimi paneli
  • 300 cm sistem z 2 steklenima paneloma
  • 300 cm sistem s 3 steklenimi panelii
  • 300 cm sistem s 4 steklenimi paneli
  • 320 cm sistem z 2 steklenima paneloma
  • 320 cm sistem s 3 steklenimi panelii
  • 320 cm sistem s 4 steklenimi paneli
  • 340 cm sistem z 2 steklenima paneloma
  • 340 cm sistem s 3 steklenimi panelii
  • 340 cm sistem s 4 steklenimi paneli
  • 360 cm sistem z 2 steklenima paneloma
  • 360 cm sistem s 3 steklenimi panelii
  • 360 cm sistem s 4 steklenimi paneli
  • 380 cm sistem s 3 steklenimi paneli
  • 380 cm sistem s 4 steklenimi paneli
  • 400 cm sistem s 3 steklenimi paneli
  • 400 cm sistem s 4 steklenimi paneli
  • 420 cm sistem s 3 steklenimi paneli
  • 420 cm sistem s 4 steklenimi paneli
  • 440 cm sistem s 3 steklenimi paneli
  • 440 cm sistem s 4 steklenimi paneli
  • 460 cm sistem s 3 steklenimi paneli
  • 460 cm sistem s 4 steklenimi paneli
  • 480 cm sistem s 3 steklenimi paneli
  • 480 cm sistem s 4 steklenimi paneli
  • 500 cm sistem s 3 steklenimi paneli
  • 500 cm sistem s 4 steklenimi paneli
  • 520 cm sistem s 3 steklenimi paneli
  • 520 cm sistem s 4 steklenimi paneli
  • 540 cm sistem s 3 steklenimi paneli
  • 540 cm sistem s 4 steklenimi paneli
  • 560 cm sistem s 4 steklenimi paneli
  • 580 cm sistem s 4 steklenimi paneli
  • 600 cm sistem s 4 steklenimi paneli
  • 620 cm sistem s 4 steklenimi paneli

  • 130 cm
  • 140 cm
  • 150 cm
  • 160 cm
  • 170 cm
  • 180 cm
  • 190 cm
  • 200 cm
  • 210 cm
  • 220 cm
  • 230 cm
  • 240 cm
  • 250 cm

Dodatki