R621 Pergoklima do velikosti 4 x 5,1 m
Največje dimenzije: širina 4 m x projekcija 5,1 m z 2 stebroma dimenzije 13 x 13 cm.
Bioklimatska pergola s samopstoječo konstrukcijo z rafiniranim in inovativnim dizajnom.
Odtok vode z vseh strani pergole L oblike 20 x 16,5 cm. Za odtok deževnice so prilagojeni stranski stebri.
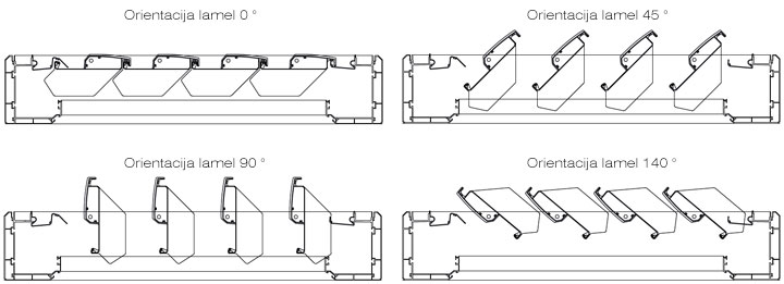
Streha iz aluminijastih lamel L oblike 4 x 22 cm, ki se enostavno orientirajo od 0 ° do 140 °, skupaj s tesnili in stranskim odtokom vode.
Struktura lahko nudi popolno ali delno zaščito pred soncem, popolen nadzor in zagotovljeno zavetje pred dežjem, ki postaja pravi življenjski prostor.
Elektromotor deluje z nisko napetostjo.
Na voljo so tudi integrirane LED luči ali zavese, ki ustvarja sinergijo med novim in obstoječim okoljem, ki vsakič ponuja prilagojene in izvirne rešitve.








