R641 Pergospace do veličine 4,5 x 8 m
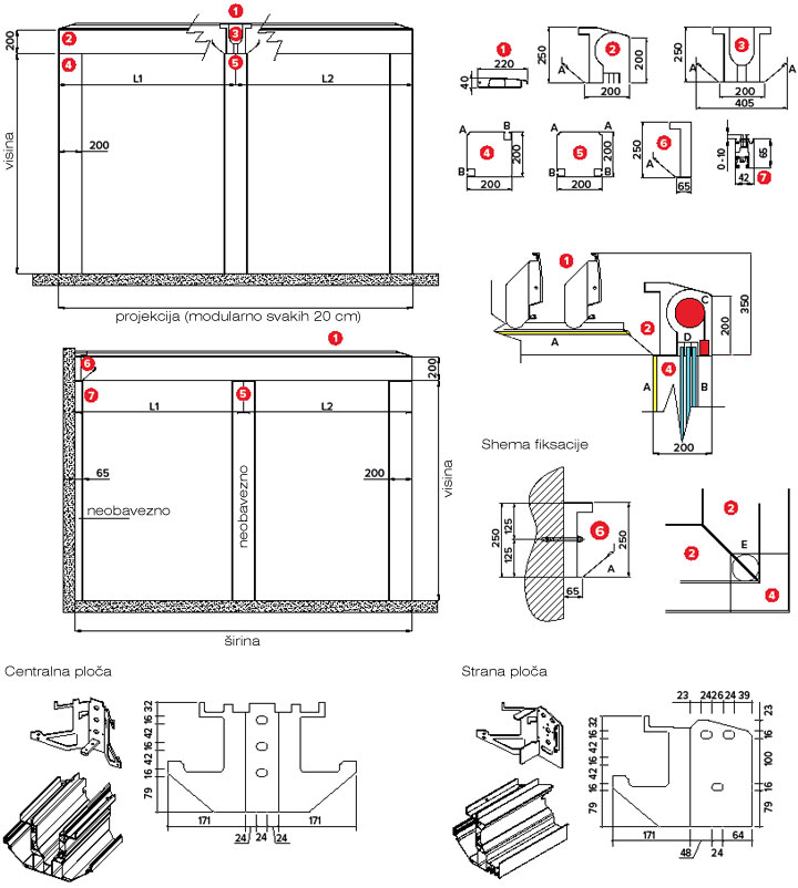
Maksimalne dimenzije: širine 4,5 m x projekcija 8 m s 2/3 stupova dimenzije 20 x 20 cm.
Bioclimatska pergola s samonosivom konstrukcijom s profinjenim i inovativnim dizajnom.
Obodni izlaz vode za odvodnjavanje kišnice kroz stupove.
U profil integisan ZIP vansko sjenilo i staklene pregrade.
Krov aluminijskih lamela L oblike 4 x 22 cm, koji mogu biti jednostavno usmjereni od 0 ° do 140 ° sa brtvama i bočnim odvodom.
Struktura može pružiti potpunu ili djelomičnu zaštitu od sunca, potpunu kontrolu i zajamčenu zaštitu od kiše.
Radi s niskonaponskim električnim motorom.
Dodatni izbor je LED svjetlo integrisano u stubove i strukturu, stvarajući sinergije između novog i postojećeg okruženja, koje uvijek nudi prilagođena i originalna rješenja.
Pribor
Pregledani proizvodi








