R621 Pergoklima do veličine 4 x 5,1 m
Maksimalne dimenzije: širine 4 m x projekcija 5,1 m s 2 stupova dimenzije 13 x 13 cm.
Bioclimatska pergola s samonosivom konstrukcijom s profinjenim i inovativnim dizajnom.
Obodni izlaz vode 20 x 16,5 cm za odvodnjavanje kišnice kroz stupove.
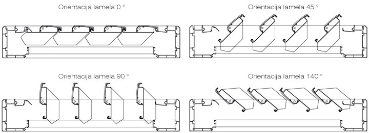
Krov aluminijskih lamela L oblike 4 x 22 cm, koji mogu biti jednostavno usmjereni od 0 ° do 140 ° sa brtvama i bočnim odvodom.
Struktura može pružiti potpunu ili djelomičnu zaštitu od sunca, potpunu kontrolu i zajamčenu zaštitu od kiše.
Radi s niskonaponskim električnim motorom.
Dodatni izbor je LED svjetlo ili zavjesa, stvarajući sinergije između novog i postojećeg okruženja, koje uvijek nudi prilagođena i originalna rješenja.
Pribor
Pregledani proizvodi






